家族とグループ
大きな屋外デッキで楽しむための広い屋内スペース







家族や友人のグループに最適な3階建てのシャレーは、遊び場となだらかな小川のある公共公園である北野西公園に隣接しています。
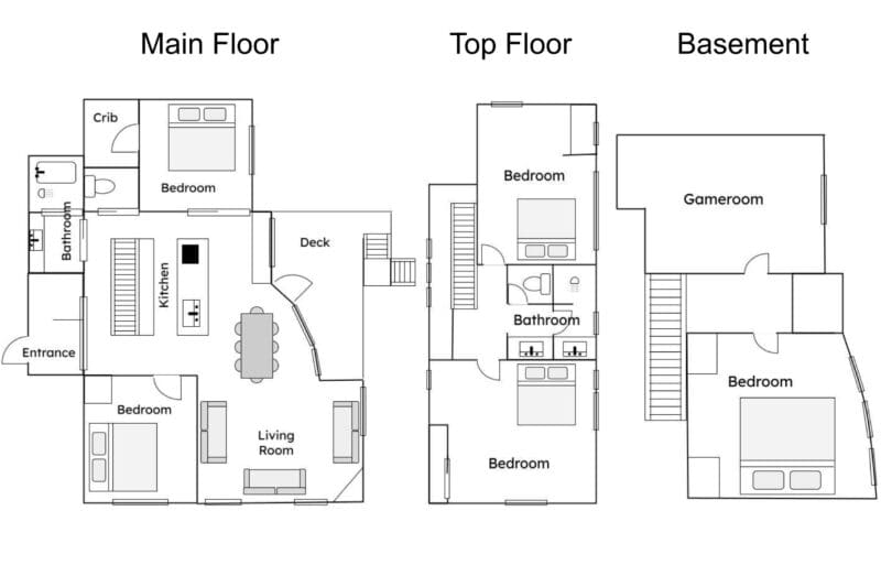
この家は東京を拠点とする建築家によって建てられ、娯楽のためのオープンダイニングエリア、キングサイズベッド付きの5つの大きなベッドルーム、子供用のゲームルームを備えています。
私たちは地元のアーティストや職人と協力して家を飾り、利用可能な場合は無料の地元のコーヒーや季節の料理を提供しました。
冬のシーズンには、ガス暖炉と暖房付きのリビングルームの床をお楽しみください。暖かい季節には、バルコニーとダイニングエリアを備えたプライベートな景観庭園は、日本のカエデ、開花植物、ハーブで彩られています。
ライセンス番号: M010011192
スマートロックによるセルフチェックイン
午後3時以降のチェックイン
午前10時前にチェックアウト
ドアコードで24時間アクセスできます。あなたの個人コードはあなたに固有のものであり、滞在中にのみ有効です。
最大3台の車のための私たちの私道に無料駐車場。
最大10名
禁煙
ペットなし
クレイジーパーティーなし
バーベキューなし
深夜の会話が推奨
階段
2階のベッドルームと地下階のプレイルームにアクセスするには階段が必要です。
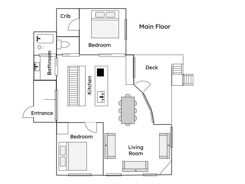
メインフロアには2つのベッドルーム、フルバス、ダイニング、リビングエリアがあり、簡単にアクセスできます。
外のデッキ
庭にアクセスするための階段と安全手すりがあります
私たちのオープンダイニングエリアで簡単に楽しませ、料理する
冷蔵庫冷凍庫
ケトルとコーヒーメーカー
トースター、電子レンジ、炊飯器
皿と銀器
鍋やフライパンを調理する
食用油、塩、コショウ
AEG食器洗い機
スーパーキング180cmワイドベッド
すべてのベッドルームは2つのシングルベッドに配置できます
各部屋のブラインド
ハンガー付きの収納スペース
ウォシュレット付きの2つの和風トイレ
シャワーと浴槽エリア付きの大きな和室バス1つ
1つのスタンドアップシャワー
スマートテレビ(Google)
2つのコントローラーとさまざまなゲームを備えたPlatstation 4
リビングルームのSonosスピーカー
寝具付きベビーベッド
幼児用椅子
子供用食器
子供の本とおもちゃ
様々なボードゲーム
各部屋の暖房/冷房
リビングルームの床暖房
AEG洗濯機/乾燥ラック
アイロン&アイロン台
2つのヘアドライヤー
傘、念のため
煙と一酸化炭素検知器。
消火器
応急処置キット
北の峰上に位置するこのシャレーは、北の峰ゴンドラまで徒歩8分(400m)、ニュープリンスホテルロープウェイまで車で10分(4km)です。富良野のダウンタウンとその周辺地域のレストランやショッピングを探索するための車をお勧めします(車で5分)。